Mi. bis So. 10.00 - 17.00 Uhr
Montag und Dienstag geschlossenMannheim Maimarktgelände
Kontaktdaten Musterhausanbieter
Musterhaus Mannheim:
0621 41813-19
0621 41813-65
Firmensitz:
Otto-Körting-Str. 3
31789 Hameln
05151 95380
05151 3951
info@meisterstueck.de
www.meisterstueck.de
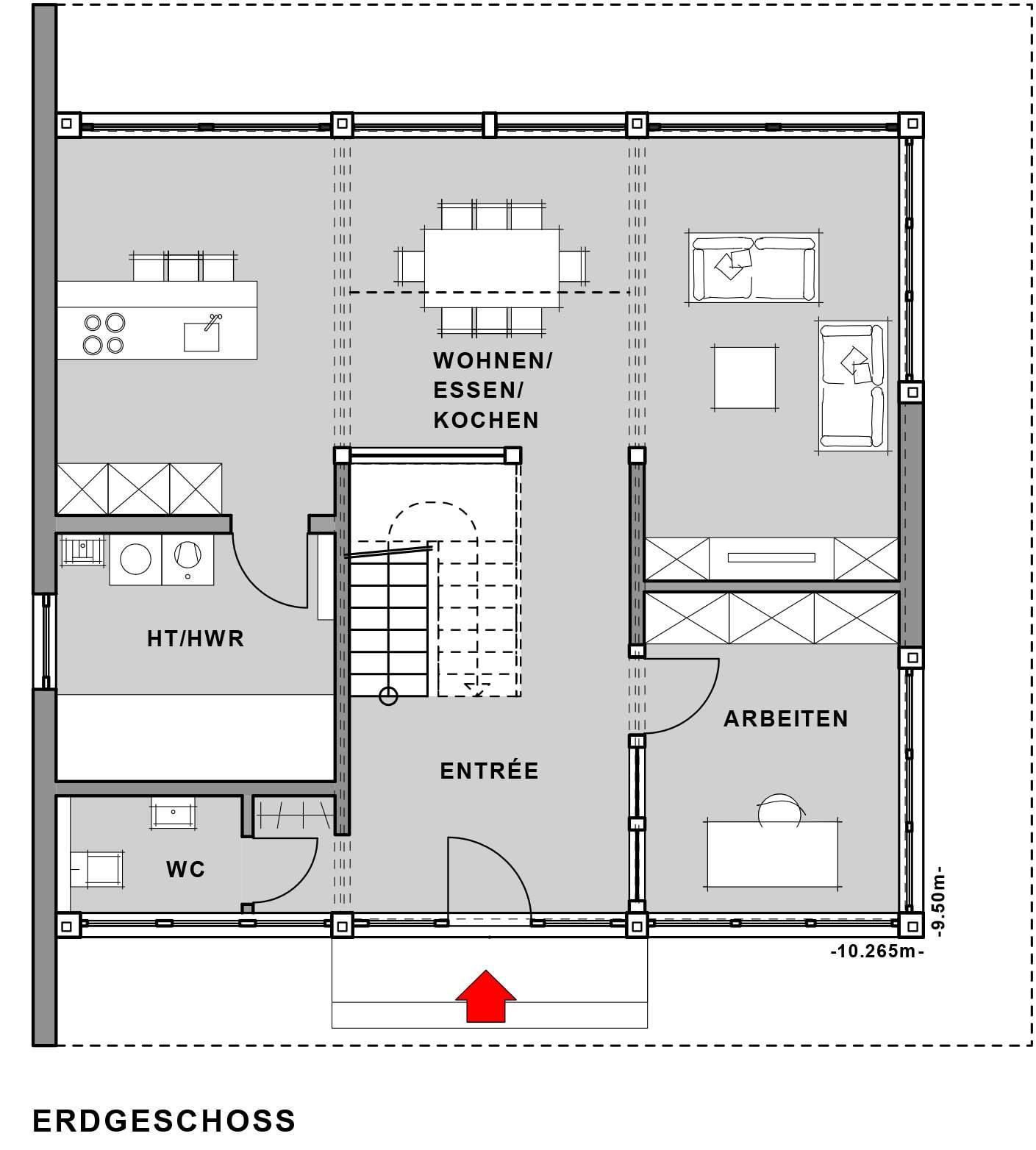
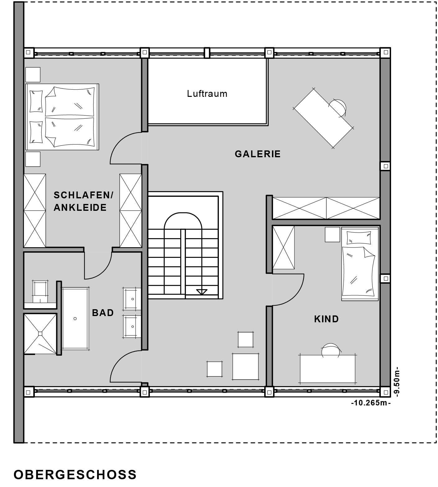
Beschreibung
Die Architektur-Idee des Musterhauses „FUSION“ im Deutschen Fertighaus Center Mannheim verbindet Gestaltungselemente der modernen Bauhaus-Architektur mit der beliebten Holz-Skelettbauweise der Meisterstück-HAUS „Ästhetik“-Häuser.
Mit einer Wohnfläche von 151 qm auf zwei Geschossen präsentiert sich „FUSION“ als elegantes, großzügiges, smartes und zugleich höchst energieeffizientes Einfamilienhaus – mit viel Glas, lichtdurchfluteten, hellen Räumen und jeder Menge Wohnkomfort. Die Kombination aus einer 6 kWp-Photovoltaik-Anlage inkl. Speicher mit einer Luft-Wasser-Wärmepumpe mit Kühlfunktion sowie kontrollierter Be- und Entlüftung mit Wärmerückgewinnung sorgt hier für einen minimalen primärenergetischen Bedarf, der weit unterhalb der geforderten Norm liegt und durch Energieeffizienzklasse A+ bestätigt wird.














